Uitbreiding woning Den Haag
Aanbouw ontwerp en ontwerp voor de interne verbouwing met advies voor het verduurzamen
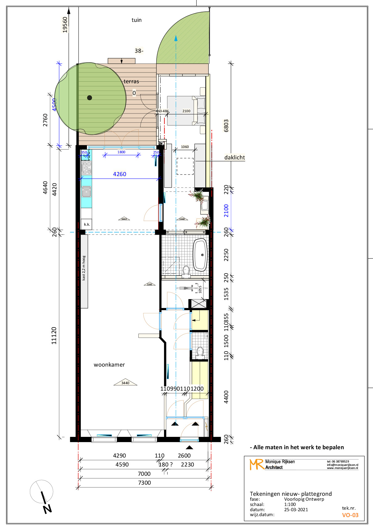
Een prachtige grote begane grond woning uit 1885 met veel originele details en met een grote diepe tuin. De nieuwe eigenaar is er eerst gaan wonen om te ervaren hoe de woning aanvoelt, wat ze wel wil behouden en wat ze graag wil aanpassen. Aan de voorzijde is nu de slaapkamer, gescheiden door een laag muurtje van de woonkamer. Aan de achterzijde is de open keuken met grote openslaande deuren naar de enorm diepe achtertuin. De badkamer zit in een soort tussenruimte. Er is nog een bergruimte middenin de woning en aan de tuin is er een berging. Met zo’n grote woning wil de eigenaar ook graag een mooie slaapkamer aan de tuin, afgescheiden van de rest van de woning.
Alle wensen zijn eerst vertaald in drie schetsontwerpen. De eigenaar heeft een moodboard gemaakt en opgehangen aan de muur. In nauwe samenspraak is er een keuze gemaakt voor een aanbouw met de uitstraling van een strandhuisje. Het interieur is een combinatie van moderne en klassieke elementen. De badkamer is verplaatst en daarvoor is een nieuwe indeling en afwerking ontworpen, passend bij haar smaak. Diezelfde sfeer is doorgetrokken naar de hal en het vernieuwde toilet. Er is een nieuw zuinig ventilatiesysteem geplaats die indien nodig ook de slaapkamer kan verwarmen. In de kelder is het vochtprobleem opgelost o.a. door ventilatie aan te leggen.
Het resultaat is prachtig!
soort project: Aanbouw en interieur ontwerp met advies verduurzaming.
jaar: januari 2021-2023
opdrachtgever: Particulier
aannemer: Nivo Bouw
architect: Monique Rijksen
Reactie klant
”In 2023 heeft Monique Rijksen mij begeleid bij het realiseren van een nieuwe uitbouw aan mijn parterrewoning. Dit begon met het aanleveren van nieuwe schetsmatige ideeën over hoe het “buitenhuisje” eruit zou kunnen gaan zien. Ondanks dat ik zelf wist wat ik wilde, was het goed om alternatieven aangedragen te krijgen en werden details verfijnd. Monique tekende de bouwkundig en technisch uitgewerkte plannen, die de aannemer gebruikte bij de uitvoering. Ik vraag me af hoe de samenwerking met de aannemer was verlopen zonder deze voorbereidende werkzaamheden.
Monique kijkt naar wie je bent, wat er bij het huis past en is heel bewust bezig met milieu en natuur. Dit heeft geleid tot een mooie nieuwe aanbouw die zo goed bij mij en het huis past, dat ik er nog steeds blij van word als ik thuiskom.”












